0
découvrir le bien
4 Pièce(s)
2 Chambre(s)

Arceaux, maison de plain-pied avec jardin

Montpellier (34000)
Réf : 1442

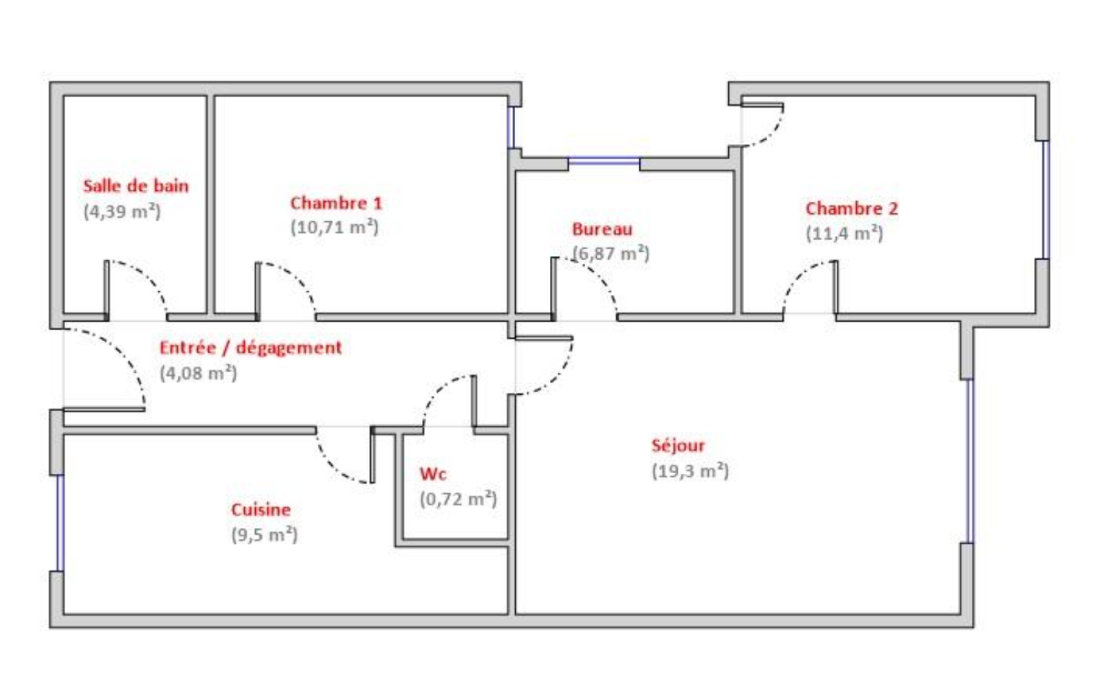
Arceaux/ Agriculture, charmante maison individuelle de 67 m2 avec jardin située dans une rue calme. De plain-pied, elle dispose d'une cuisine séparée, d'un séjour de plus de 19 m² ouvrant sur la terrasse et le jardin, de deux chambres, un bureau, une salle de bains et wc séparés.

De plus, des combles de 15 m2 sont accessibles par une échelle escamotable.

Petit atelier dans le jardin. Possibilité de stationner un véhicule dans la cour située à l'avant de la maison et stationnement résidentiel dans la rue.

Idéalement situé à proximité de toutes les commodités des Arceaux (marché bio, ligne de bus, écoles, commerces, cabinets médicaux, restaurants).

Contactez l'agence Bazille Arceaux pour une visite!


Les informations sur les risques auxquels ce bien est exposé sont disponibles sur le site Géorisques
Ce bien vous intéresse ?
Fieldset par défaut
Fieldset par défaut
Validation

* Champs obligatoires

Contacter l'agence
Validation
Les informations recueillies sur ce formulaire sont enregistrées dans un fichier informatisé par La Boite Immo agissant comme Sous-traitant du traitement pour la gestion de la clientèle/prospects de l'Agence / du Réseau qui reste Responsable du Traitement de vos Données personnelles. La base légale du traitement repose sur l'intérêt légitime de l'Agence / du Réseau. Elles sont conservées jusqu'à demande de suppression et sont destinées à l'Agence / au Réseau. Conformément à la loi « informatique et libertés », vous disposez des droits d’accès, de rectification, d’effacement, d’opposition, de limitation et de portabilité de vos données. Vous pouvez retirer votre consentement à tout moment en contactant directement l’Agence / Le Réseau. Consultez le site https://cnil.fr/fr pour plus d’informations sur vos droits. Si vous estimez, après avoir contacté l'Agence / le Réseau, que vos droits « Informatique et Libertés » ne sont pas respectés, vous pouvez adresser une réclamation à la CNIL. Nous vous informons de l’existence de la liste d'opposition au démarchage téléphonique « Bloctel », sur laquelle vous pouvez vous inscrire ici : https://www.bloctel.gouv.fr Dans le cadre de la protection des Données personnelles, nous vous invitons à ne pas inscrire de Données sensibles dans le champ de saisie libre.
Ce site est protégé par reCAPTCHA, les Politiques de Confidentialité et les Conditions d'Utilisation de Google s'appliquent.

En Bref

Code postal 34000
Surface habitable (m²) 82,40 m²
surface terrain 170 m²
Surface loi Carrez (m²) 67 m²
Nombre de chambre(s) 2
Nombre de pièces 4
Nombre de niveaux 1
Vue dégagée
Nb de salle de bains 1
Cuisine Séparée
Type de cuisine SEMI-EQUIPEE
Mode de chauffage Gaz
Type de chauffage Radiateur
Format de chauffage Individuel
Interphone OUI
Visiophone NON
Loggia NON
Terrasse OUI
Murs mitoyens 2
Nombre de parking 1
Exposition Sud-Ouest
Année de construction 1950
Quartier Agriculture, Les Arceaux
Terrain piscinable NON
Terrain arboré OUI
Terrain divisible NON

Infos financières

Prix de vente honoraires TTC inclus 449 000 €
Prix de vente honoraires TTC exclus 427 000 €
Honoraires TTC à la charge acquéreur 5,15 %
Taxe foncière annuelle 1 370 €

Infos copropriété

Copropriété NON
plan de sauvegarde NON

Energie

Energie
DPE
GES

Localisation

Localisation

*HAI : Honoraires d'Agence Inclus

*CC : Charges comprises

*HC : Hors charges