0
Exclusif

Exclusif - Terrain à bâtir - 1274m2 - PC Obtenu Saint Bauzille de Putois

Saint-Bauzille-de-Putois (34190)
Réf : 1464

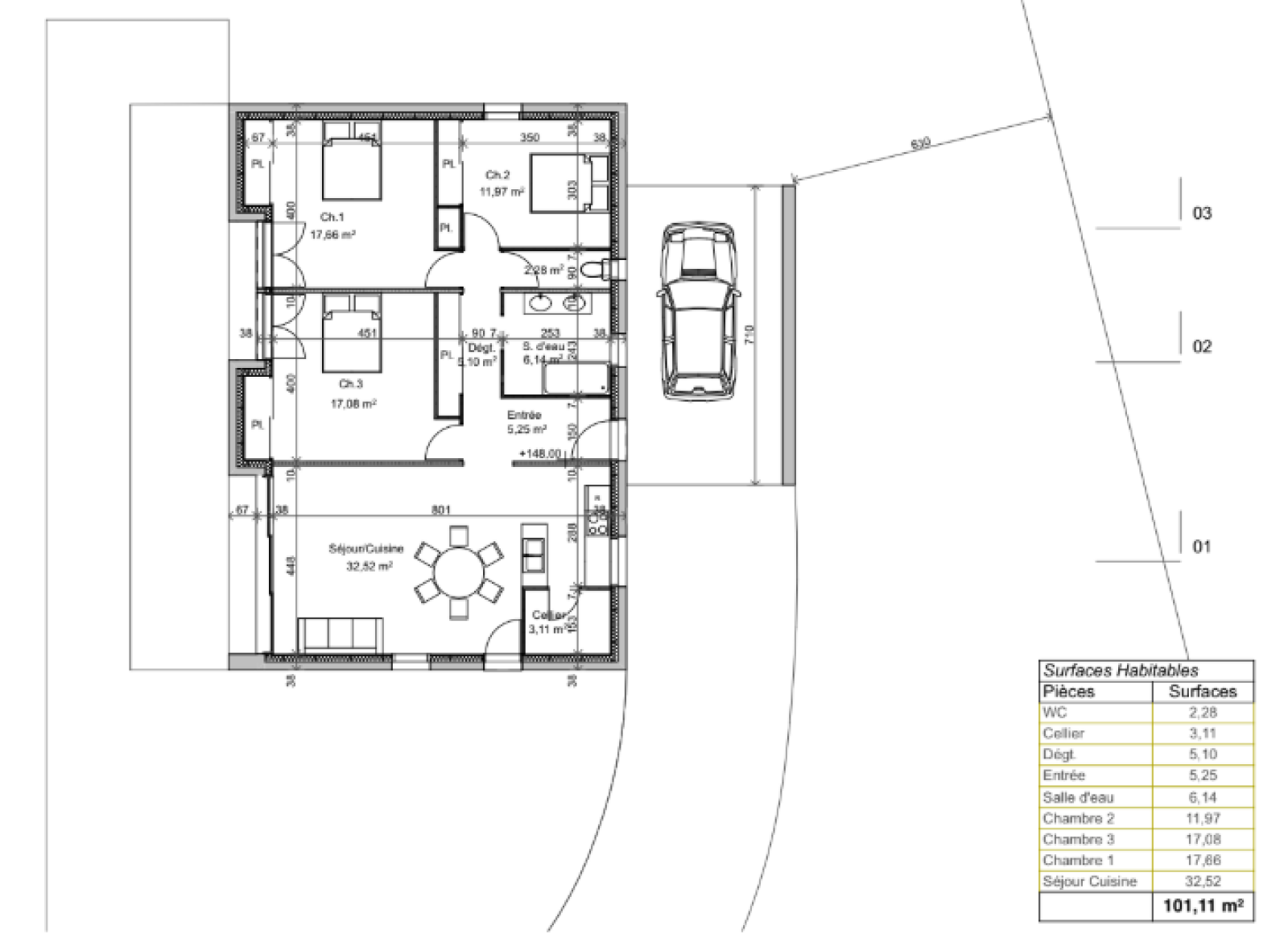
Il s’agit d’un terrain constructible d’une surface de 1274m2 pour lequel un permis de construire a été obtenu en mars 2025 pour une maison individuelle de 101m2 de plain pied avec garage.

Le terrain a une forme rectangulaire, en légère déclivité, clôturé sur 3 côtés et dispose des réseaux en bordure, avec un assainissement individuel à prévoir.

L'étude de sol G1 a été effectuée.

Ce terrain vous est proposé par un agent mandataire indépendant Julie Mansching, EI, immatriculée au RSAC de Montpellier n°843933185.

Les informations sur les risques auxquels ce bien est exposé sont disponibles sur le site Géorisques : www.georisques.gouv.fr

Annonce proposée par un agent commercial

Ce bien vous intéresse ?
Fieldset par défaut
Fieldset par défaut
Validation

* Champs obligatoires

Contacter l'agence
Validation
Les informations recueillies sur ce formulaire sont enregistrées dans un fichier informatisé par La Boite Immo agissant comme Sous-traitant du traitement pour la gestion de la clientèle/prospects de l'Agence / du Réseau qui reste Responsable du Traitement de vos Données personnelles.
La base légale du traitement repose sur l’intérêt légitime de l'Agence / du Réseau.
Elles sont conservées jusqu'à demande de suppression et sont destinées à l'Agence / au Réseau.
Conformément à la loi « informatique et libertés », vous pouvez exercer votre droit d'accès aux données vous concernant et les faire rectifier en contactant l'Agence / le Réseau.
Si vous estimez, après avoir contacté l'Agence / le Réseau, que vos droits « Informatique et Libertés » ne sont pas respectés, vous pouvez adresser une réclamation à la CNIL.
Nous vous informons de l’existence de la liste d'opposition au démarchage téléphonique « Bloctel », sur laquelle vous pouvez vous inscrire ici : https://www.bloctel.gouv.fr 
Dans le cadre de la protection des Données personnelles, nous vous invitons à ne pas inscrire de Données sensibles dans le champ de saisie libre
Ce site est protégé par reCAPTCHA, les Politiques de Confidentialité et les Conditions d'Utilisation de Google s'appliquent.

En Bref

Code postal 34190
surface terrain 1 274 m²
Terrain constructible OUI
Surface constructible 1274
Terrain Viabilisé NON

Infos financières

Prix de vente 243 000 €
Les honoraires d'agence seront intégralement à la charge du vendeur  

Infos copropriété

Copropriété NON

Localisation

Localisation

*HAI : Honoraires d'Agence Inclus

*CC : Charges comprises

*HC : Hors charges