0
découvrir le bien
6 Pièce(s)
5 Chambre(s)

Villa 6 pièces, jardin, garage

Montpellier (34070)
Réf : 1482

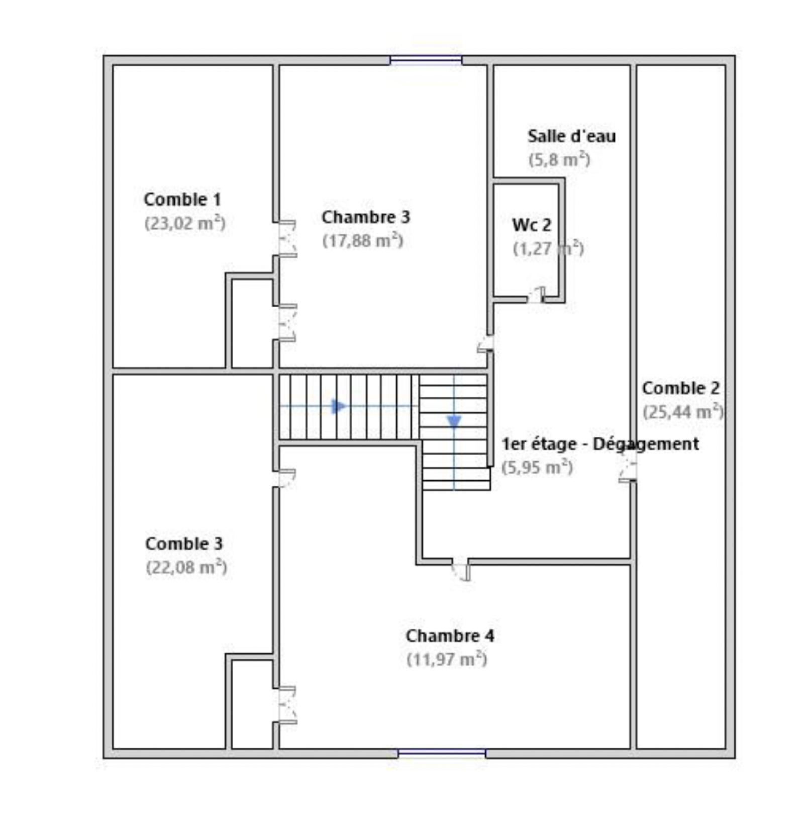
MONTPELLIER, à proximité du centre ville et à 5 minutes des arceaux, belle villa traditionnelle indépendante 6 pièces de 145 m2 comprenant au rez-de-chaussée une cuisine pouvant être ouverte sur le séjour et la terrasse, trois chambres spacieuses, une salle de bains et wc séparés, et à l'étage, deux grandes chambres, une salle d'eau et wc séparés. 70 m2 de surface de combles parfaits pour le rangement.

Garage de 15 m2 et possibilité de stationner deux véhicules sur le terrain.

Jardin ensoleillé avec terrasse et possibilité de petite piscine. Super potentiel!

A proximité immédiate des écoles et à 500 mètres seulement du Tram ligne 3 et ligne 5.

Une sélection de l'Agence Bazille Arceaux.


Les informations sur les risques auxquels ce bien est exposé sont disponibles sur le site Géorisques
Ce bien vous intéresse ?
Fieldset par défaut
Fieldset par défaut
Validation

* Champs obligatoires

Contacter l'agence
Validation
Les informations recueillies sur ce formulaire sont enregistrées dans un fichier informatisé par La Boite Immo agissant comme Sous-traitant du traitement pour la gestion de la clientèle/prospects de l'Agence / du Réseau qui reste Responsable du Traitement de vos Données personnelles.
La base légale du traitement repose sur l’intérêt légitime de l'Agence / du Réseau.
Elles sont conservées jusqu'à demande de suppression et sont destinées à l'Agence / au Réseau.
Conformément à la loi « informatique et libertés », vous pouvez exercer votre droit d'accès aux données vous concernant et les faire rectifier en contactant l'Agence / le Réseau.
Si vous estimez, après avoir contacté l'Agence / le Réseau, que vos droits « Informatique et Libertés » ne sont pas respectés, vous pouvez adresser une réclamation à la CNIL.
Nous vous informons de l’existence de la liste d'opposition au démarchage téléphonique « Bloctel », sur laquelle vous pouvez vous inscrire ici : https://www.bloctel.gouv.fr 
Dans le cadre de la protection des Données personnelles, nous vous invitons à ne pas inscrire de Données sensibles dans le champ de saisie libre
Ce site est protégé par reCAPTCHA, les Politiques de Confidentialité et les Conditions d'Utilisation de Google s'appliquent.

En Bref

Code postal 34070
Surface habitable (m²) 144 m²
surface terrain 427 m²
Surface loi Carrez (m²) 144 m²
Nombre de chambre(s) 5
Nombre de pièces 6
Nombre de niveaux 2
Vue sur jardin
Nb de salle de bains 1
Nb de salle d'eau 1
Cuisine Séparée
Type de cuisine SEMI-EQUIPEE
Mode de chauffage Autre, Gaz
Type de chauffage Autre, Autre
Format de chauffage Individuel, AUTRE
Interphone NON
Visiophone NON
Terrasse OUI
Nombre de garage 1
Nombre de parking 2
Exposition Sud
Année de construction 1965
Quartier La Chamberte
Terrain piscinable OUI
Terrain arboré OUI

Infos financières

Prix de vente 450 000 €
Les honoraires d'agence seront intégralement à la charge du vendeur  
Taxe foncière annuelle 3 082 €

Infos copropriété

Copropriété NON

Energie

Energie
DPE
GES

Localisation

Localisation

*HAI : Honoraires d'Agence Inclus

*CC : Charges comprises

*HC : Hors charges